Stepped Reinforced Concrete Foundation Footings Detail
Stepped Reinforced Concrete Foundation Footings Detail
Couldn't load pickup availability
DIGITAL CONTENT – INSTANT DOWNLOAD
Save hours of drafting time. Ready-to-use structural CAD detail.
WHAT'S INCLUDED
WHAT'S INCLUDED
DIGITAL CONTENT - INSTANT DOWNLOAD. Your files will be available to download immediately after successful payment.
STRUCTURAL CAD DRAWING .dwg, .dxf, and .pdf delivered in one zip file.
All drawings are prepared using the metric system.
3D Images and models are not included with this purchase.
REFUNDS POLICY
REFUNDS POLICY
For digital products we generally cannot offer refunds. Refunds can only be considered under specific circumastances. For more details you can read our refund and returns policy HERE
FULL PRODUCT DESCRIPTION
FULL PRODUCT DESCRIPTION
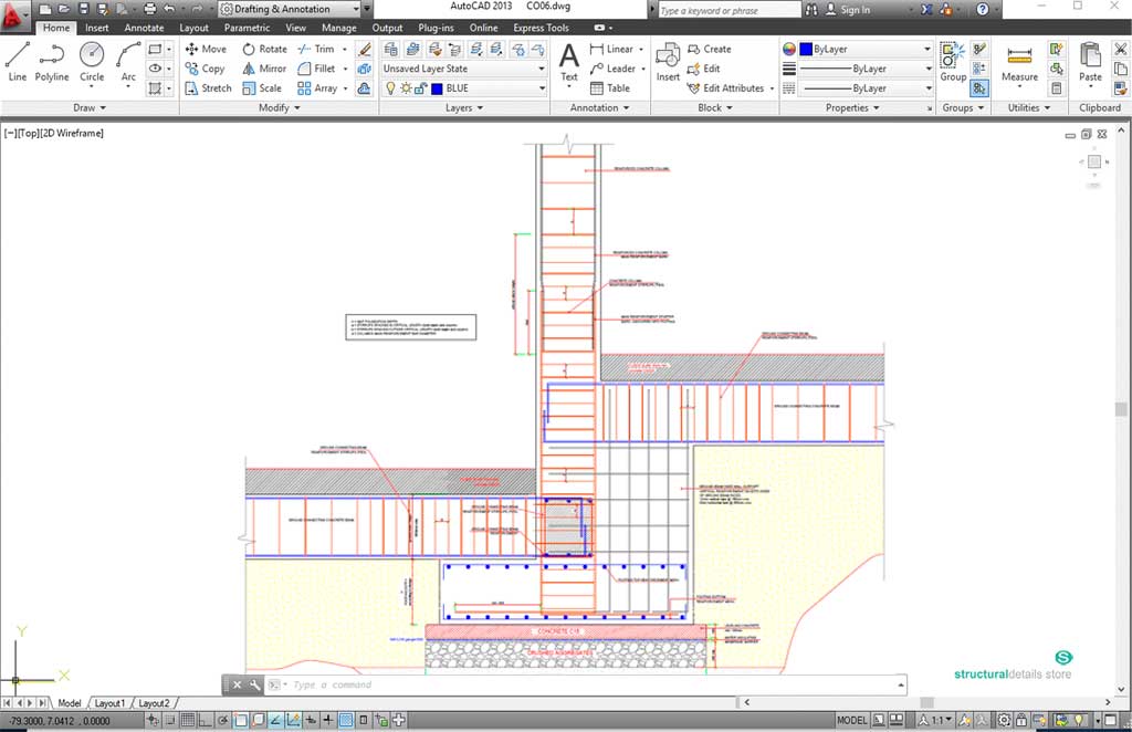
This is a CAD dwg drawing with a Stepped Reinforced Concrete Foundation Footings Detail. Concrete columns that need to be supported from foundations on different elevation level, need to be properly connected with foundation ground beams in order to account for differential ground settlement.
Best practice is to support all structure columns on footings on the same level. Such practive should only be implemented for particular conditions and situations that demand it.
Consecutive columns that are founded on different levels should be connected with foundation ground grade beams. This CAD drawing is a typical general detail describing how these two columns should be connected detailing both their respective footings and ground beams as well as reinforcement ties for both column and beams, ancorage, development length minimums etc.
Purchased contents include :
-
CAD .dwg file
-
CAD .dxf file
-
PDF
-
unlimited use, unlocked, fully customisable
Share



Bundle and Save . . .
-
Complete Single Span Hangar Portal Frame Design Details
Regular price €28,00 EURRegular price€35,00 EURSale price €28,00 EURSale -
Simple Timber Pergola Complete Solution Details for veranda patio porch
Regular price €28,00 EURRegular price€35,00 EURSale price €28,00 EURSale -
Steel Frame Hangar Complete Design Drawings
Regular price €75,00 EURRegular price€100,00 EURSale price €75,00 EURSale -
Complete structural design drawings for a reinforced concrete house
Regular price €75,00 EURRegular price€100,00 EURSale price €75,00 EURSale -
Reinforced Concrete Beam Column Multistorey Frame Connections
Regular price €25,00 EURRegular price€33,00 EURSale price €25,00 EURSale

Complete Library Sets
Large number of individual details bundled together into complete library sets. Complete Reinforced Concrete library, Steel frame library, Timber frame library and Revit families library.
Grow your library with this great value set of drawings.
Buy Once and Get Free Lifetime Updates!

Library Bundles
Carefully selected collection of CAD structural details and excel templates, bundled together at a special discounted price.
Bundle and save!

Our Super Bundle Offer
All of our structural CAD libraries, bundled together into a single package with hundreds of drawings at a Super Bundle Price.
Contains all of Reinforced Concrete, Steel Frame and Timber frame structural drawings.
A large comprehensive structural library at your fingertips to use with every project. Save time - save big!
Buy Once and Get Free Lifetime Updates!

Subscribe to our mailing list
To show our appreciation we will send you a 10% discount for your next purchase. We only send 1-2 emails per month with store updates and upcoming offers.
We promise not to spam your inbox. Don't miss out on amazing offers!
RECEIVE A FREE SAMPLES PACK
SIGN UP HERE
Discover more...
Browser our Youtube channel and discover more design tips, tutorials and productivity tools.
-
SAVE TIME
Ready made CAD drawings
-
LARGE LIBRARY
Biggest structural library online
-
FULLY DETAILED
Taken from real life projects