Steel Beam Reduced Size Welded Splice Connection Detail
Steel Beam Reduced Size Welded Splice Connection Detail
Couldn't load pickup availability
DIGITAL CONTENT – INSTANT DOWNLOAD
Ready-to-use structural CAD detail. Save hours of drafting time.
WHAT'S INCLUDED
WHAT'S INCLUDED
DIGITAL CONTENT - INSTANT DOWNLOAD. Your files will be available to download immediately after successful payment.
STRUCTURAL CAD DRAWING .dwg, .dxf, and .pdf delivered in one zip file.
All drawings are prepared using the metric system.
3D Images and models are not included with this purchase.
REFUNDS POLICY
REFUNDS POLICY
For digital products we generally cannot offer refunds. Refunds can only be considered under specific circumastances. For more details you can read our refund and returns policy HERE
FULL PRODUCT DESCRIPTION
FULL PRODUCT DESCRIPTION
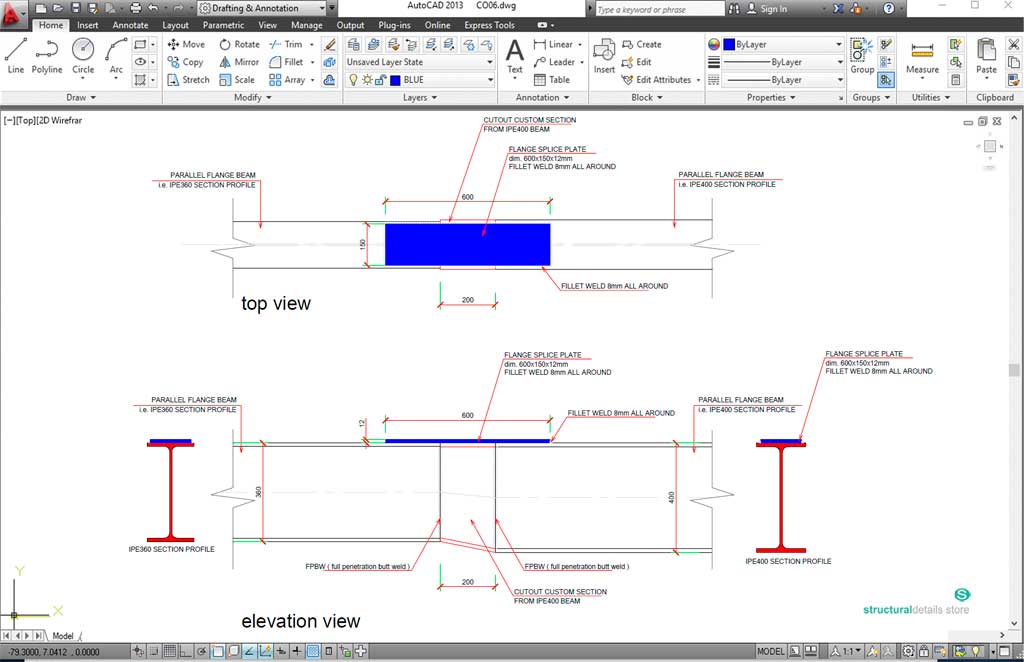
CAD fabrication drawing for Steel Beam Reduced Size Welded Splice Connection Detail. Two ( 2 ) consecutive difference size IPE steel profile sections, IPE400 to IPE360, connected together with a full penetration butt weld splice connection.
Reducing the size of the beam is very a common practice in order to reduce the selfweight ( dead-load ) of a structure. Usually beam splice connections are carried out at the 1/3 of the beam span.
The two ( 2) consecutive steel beams are connected together using an intermediate custom profile ( cut from the bigger section ), shop welded together with a full penetration butt weld to ensure continuity. The use of this intermediate section is for ensuring smooth transfer of loads between the two sections.
Share
Full Description
CAD fabrication drawing for Steel Beam Reduced Size Welded Splice Connection Detail. Two ( 2 ) consecutive difference size IPE steel profile sections, IPE400 to IPE360, connected together with a full penetration butt weld splice connection.
Reducing the size of the beam is very a common practice in order to reduce the selfweight ( dead-load ) of a structure. Usually beam splice connections are carried out at the 1/3 of the beam span.
The two ( 2) consecutive steel beams are connected together using an intermediate custom profile ( cut from the bigger section ), shop welded together with a full penetration butt weld to ensure continuity. The use of this intermediate section is for ensuring smooth transfer of loads between the two sections.
Bundle and Save . . .
-
Complete Single Span Hangar Portal Frame Design Details
Regular price €28,00 EURRegular price€35,00 EURSale price €28,00 EURSale -
Steel Frame Hangar Complete Design Drawings
Regular price €75,00 EURRegular price€100,00 EURSale price €75,00 EURSale -
Simple Timber Pergola Complete Solution Details for veranda patio porch
Regular price €28,00 EURRegular price€35,00 EURSale price €28,00 EURSale -
Complete structural design drawings for a reinforced concrete house
Regular price €75,00 EURRegular price€100,00 EURSale price €75,00 EURSale -
Reinforced Concrete Beam Column Multistorey Frame Connections
Regular price €25,00 EURRegular price€33,00 EURSale price €25,00 EURSale
Complete Library Sets
Large number of individual details bundled together into complete library sets. Complete Reinforced Concrete library, Steel frame library, Timber frame library and Revit families library.
Grow your library with this great value set of drawings.
Buy Once and Get Free Lifetime Updates!
Library Bundles
Carefully selected collection of CAD structural details and excel templates, bundled together at a special discounted price.
Bundle and save!
Our Super Bundle Offer
All of our structural CAD libraries, bundled together into a single package with hundreds of drawings at a Super Bundle Price.
Contains all of Reinforced Concrete, Steel Frame and Timber frame structural drawings.
A large comprehensive structural library at your fingertips to use with every project. Save time - save big!
Buy Once and Get Free Lifetime Updates!
Subscribe to our mailing list
To show our appreciation we will send you a 10% discount for your next purchase. We only send 1-2 emails per month with store updates and upcoming offers.
We promise not to spam your inbox. Don't miss out on amazing offers!
RECEIVE A FREE SAMPLES PACK
SIGN UP HERE
Discover more...
Browser our Youtube channel and discover more design tips, tutorials and productivity tools.
-
SAVE TIME
Ready made CAD drawings
-
LARGE LIBRARY
Biggest structural library online
-
FULLY DETAILED
Taken from real life projects