Reinforced Concrete Beam Connection to Composite Column Detail
Reinforced Concrete Beam Connection to Composite Column Detail
Couldn't load pickup availability
DIGITAL CONTENT – INSTANT DOWNLOAD
Save hours of drafting time. Ready-to-use structural CAD detail.
WHAT'S INCLUDED
WHAT'S INCLUDED
DIGITAL CONTENT - INSTANT DOWNLOAD. Your files will be available to download immediately after successful payment.
STRUCTURAL CAD DRAWING .dwg, .dxf, and .pdf delivered in one zip file.
All drawings are prepared using the metric system.
3D Images and models are not included with this purchase.
REFUNDS POLICY
REFUNDS POLICY
For digital products we generally cannot offer refunds. Refunds can only be considered under specific circumastances. For more details you can read our refund and returns policy HERE
FULL PRODUCT DESCRIPTION
FULL PRODUCT DESCRIPTION
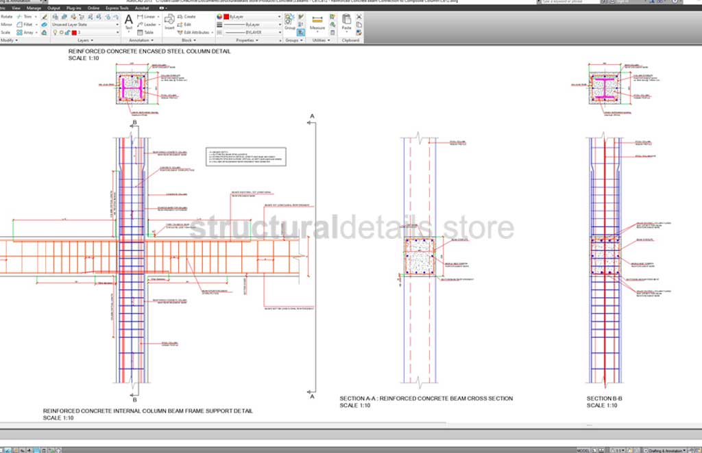
Looking for a way to save time and increase efficiency on your construction projects? This generic CAD structural detail, of a reinforced concrete beam joint connection to a composite column is the perfect addition to your library when designing for composite concrete and steel structures.
Comprehensive Detailing
Comprehensive breakdown of the connection between a reinforced concrete beam and a composite column mid-frame. Beam is continuous through the composite column.
Column is a composite reinforced concrete and steel HEB profile section column supporting a continuous reinforced concrete beam. Complete with top and bottom beam reinforcement bar details, column reinforcement bar information, starters, stirrups, additional beam top longitudinal reinforcement, member’s critical length, and anchorage and reinforcement concrete bond requirements.
Proper reinforcement placement and methodology for passing the beam reinforcement throught the composite column for continuity are all illustraded in this detail. This detailed drawing is an essential addition to your design toolkit. Use it to ensure your structural details are up to code and impress your clients with the level of detail and professionalism you bring to every project.
Column reinforcement is wrapped around the steel HEB profile section column. Detail illustrades a continuous floor to floor column joint with splice re-bar connection above the floor slab level.
It is critical to ensure continuity with the beam reinforcement as it intersects with the composite column. Side re-bars pass from the right and left side of the steel column continuously and always within the column stirrups and main reinforcement. Middle beam reinforcement also needs to pass through the steel column flanges, and for this case small holes onto the column flanges are to be opened ( 2mm larger than the re-bar itself ) to ensure that these are able to pass through and ensure transfer of loads through the beams on both sides of the column.
Beam stirrups, will have to be discontinued at the intersection with the steel interior column.
Share



Bundle and Save . . .
-
Complete Single Span Hangar Portal Frame Design Details
Regular price €28,00 EURRegular price€35,00 EURSale price €28,00 EURSale -
Simple Timber Pergola Complete Solution Details for veranda patio porch
Regular price €28,00 EURRegular price€35,00 EURSale price €28,00 EURSale -
Complete structural design drawings for a reinforced concrete house
Regular price €75,00 EURRegular price€100,00 EURSale price €75,00 EURSale -
Steel Frame Hangar Complete Design Drawings
Regular price €75,00 EURRegular price€100,00 EURSale price €75,00 EURSale -
Reinforced Concrete Beam Column Multistorey Frame Connections
Regular price €25,00 EURRegular price€33,00 EURSale price €25,00 EURSale

Complete Library Sets
Large number of individual details bundled together into complete library sets. Complete Reinforced Concrete library, Steel frame library, Timber frame library and Revit families library.
Grow your library with this great value set of drawings.
Buy Once and Get Free Lifetime Updates!

Library Bundles
Carefully selected collection of CAD structural details and excel templates, bundled together at a special discounted price.
Bundle and save!

Our Super Bundle Offer
All of our structural CAD libraries, bundled together into a single package with hundreds of drawings at a Super Bundle Price.
Contains all of Reinforced Concrete, Steel Frame and Timber frame structural drawings.
A large comprehensive structural library at your fingertips to use with every project. Save time - save big!
Buy Once and Get Free Lifetime Updates!

Subscribe to our mailing list
To show our appreciation we will send you a 10% discount for your next purchase. We only send 1-2 emails per month with store updates and upcoming offers.
We promise not to spam your inbox. Don't miss out on amazing offers!
RECEIVE A FREE SAMPLES PACK
SIGN UP HERE
Discover more...
Browser our Youtube channel and discover more design tips, tutorials and productivity tools.
-
SAVE TIME
Ready made CAD drawings
-
LARGE LIBRARY
Biggest structural library online
-
FULLY DETAILED
Taken from real life projects