Inclined Roof RHS Steel Purlins Connection
Inclined Roof RHS Steel Purlins Connection
Couldn't load pickup availability
DIGITAL CONTENT – INSTANT DOWNLOAD
Ready-to-use structural CAD detail. Save hours of drafting time.
WHAT'S INCLUDED
WHAT'S INCLUDED
DIGITAL CONTENT - INSTANT DOWNLOAD. Your files will be available to download immediately after successful payment.
STRUCTURAL CAD DRAWING .dwg, .dxf, and .pdf delivered in one zip file.
All drawings are prepared using the metric system.
3D Images and models are not included with this purchase.
REFUNDS POLICY
REFUNDS POLICY
For digital products we generally cannot offer refunds. Refunds can only be considered under specific circumastances. For more details you can read our refund and returns policy HERE
FULL PRODUCT DESCRIPTION
FULL PRODUCT DESCRIPTION
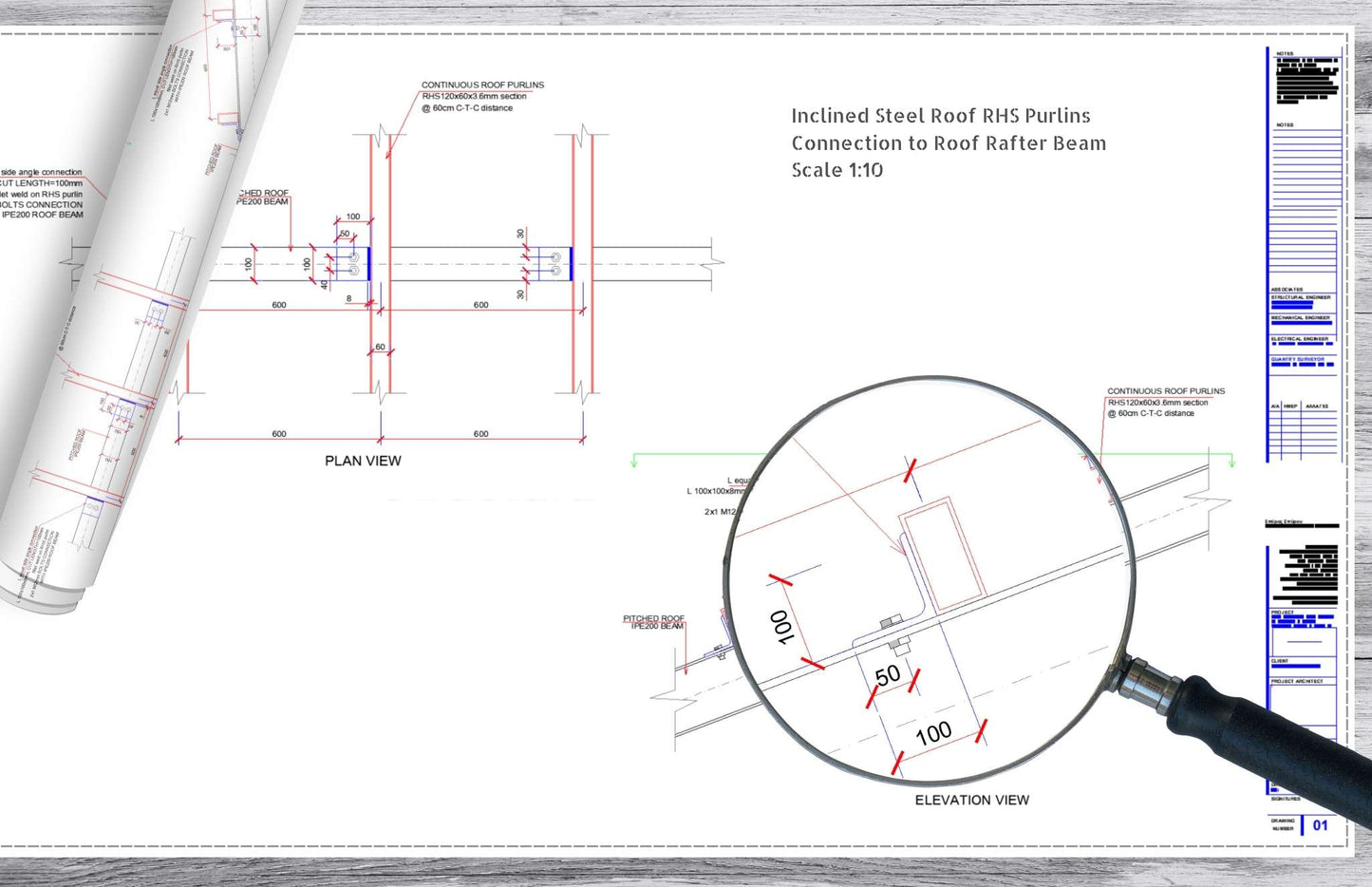
Looking for a CAD detail drawing for steel roof RHS purlins connection? This is a CAD dwg drawing detail for Inclined Roof RHS Steel Purlins Connection on top of a steel parallel flange IPE section profile roof rafter. Most commonly used steel house roof purlins solution.
Comprehensive Detailing
Fully detailed connection dwg drawing. Roof rafter used is a generic parallel flange IPE section profile with inclined RHS profile section roof purlins. Connection is done using an L-equal angle section welded to the RHS purlin and bolted onto the top IPE roof beam flange. Roof pitch can be easily manipulated with simple CAD commands, to suit every project.
Most commonly used roof purlins connection for any steel house design for either panel roofing or clay tiles.
Use with any project
This comprehensive drawing provides a clear and detailed representation of RHS roof purlins connection on top of main roof rafters.
The drawing is designed to be adaptable to any steel design project, ensuring that it can be used across a wide range of construction applications. You can easily customize the detail ( slope and sizing ) to fit your unique design specifications and steel beam profile sections, saving valuable time and increasing efficiency on every project.
Share

Full Description
Looking for a CAD detail drawing for steel roof RHS purlins connection? This is a CAD dwg drawing detail for Inclined Roof RHS Steel Purlins Connection on top of a steel parallel flange IPE section profile roof rafter. Most commonly used steel house roof purlins solution.
Comprehensive Detailing
Fully detailed connection dwg drawing. Roof rafter used is a generic parallel flange IPE section profile with inclined RHS profile section roof purlins. Connection is done using an L-equal angle section welded to the RHS purlin and bolted onto the top IPE roof beam flange. Roof pitch can be easily manipulated with simple CAD commands, to suit every project.
Most commonly used roof purlins connection for any steel house design for either panel roofing or clay tiles.
Use with any project
This comprehensive drawing provides a clear and detailed representation of RHS roof purlins connection on top of main roof rafters.
The drawing is designed to be adaptable to any steel design project, ensuring that it can be used across a wide range of construction applications. You can easily customize the detail ( slope and sizing ) to fit your unique design specifications and steel beam profile sections, saving valuable time and increasing efficiency on every project.
Bundle and Save . . .
-
Complete Single Span Hangar Portal Frame Design Details
Regular price €28,00 EURRegular price€35,00 EURSale price €28,00 EURSale -
Steel Frame Hangar Complete Design Drawings
Regular price €75,00 EURRegular price€100,00 EURSale price €75,00 EURSale -
Simple Timber Pergola Complete Solution Details for veranda patio porch
Regular price €28,00 EURRegular price€35,00 EURSale price €28,00 EURSale -
Complete structural design drawings for a reinforced concrete house
Regular price €75,00 EURRegular price€100,00 EURSale price €75,00 EURSale -
Reinforced Concrete Beam Column Multistorey Frame Connections
Regular price €25,00 EURRegular price€33,00 EURSale price €25,00 EURSale
Complete Library Sets
Large number of individual details bundled together into complete library sets. Complete Reinforced Concrete library, Steel frame library, Timber frame library and Revit families library.
Grow your library with this great value set of drawings.
Buy Once and Get Free Lifetime Updates!
Library Bundles
Carefully selected collection of CAD structural details and excel templates, bundled together at a special discounted price.
Bundle and save!
Our Super Bundle Offer
All of our structural CAD libraries, bundled together into a single package with hundreds of drawings at a Super Bundle Price.
Contains all of Reinforced Concrete, Steel Frame and Timber frame structural drawings.
A large comprehensive structural library at your fingertips to use with every project. Save time - save big!
Buy Once and Get Free Lifetime Updates!
Subscribe to our mailing list
To show our appreciation we will send you a 10% discount for your next purchase. We only send 1-2 emails per month with store updates and upcoming offers.
We promise not to spam your inbox. Don't miss out on amazing offers!
RECEIVE A FREE SAMPLES PACK
SIGN UP HERE
Discover more...
Browser our Youtube channel and discover more design tips, tutorials and productivity tools.
-
SAVE TIME
Ready made CAD drawings
-
LARGE LIBRARY
Biggest structural library online
-
FULLY DETAILED
Taken from real life projects