Beam to Beam Endplate Steel Connection Detail
Beam to Beam Endplate Steel Connection Detail
Couldn't load pickup availability
DIGITAL CONTENT – INSTANT DOWNLOAD
Save hours of drafting time. Ready-to-use structural CAD detail.
WHAT'S INCLUDED
WHAT'S INCLUDED
DIGITAL CONTENT - INSTANT DOWNLOAD. Your files will be available to download immediately after successful payment.
STRUCTURAL CAD DRAWING .dwg, .dxf, and .pdf delivered in one zip file.
All drawings are prepared using the metric system.
3D Images and models are not included with this purchase.
REFUNDS POLICY
REFUNDS POLICY
For digital products we generally cannot offer refunds. Refunds can only be considered under specific circumastances. For more details you can read our refund and returns policy HERE
FULL PRODUCT DESCRIPTION
FULL PRODUCT DESCRIPTION
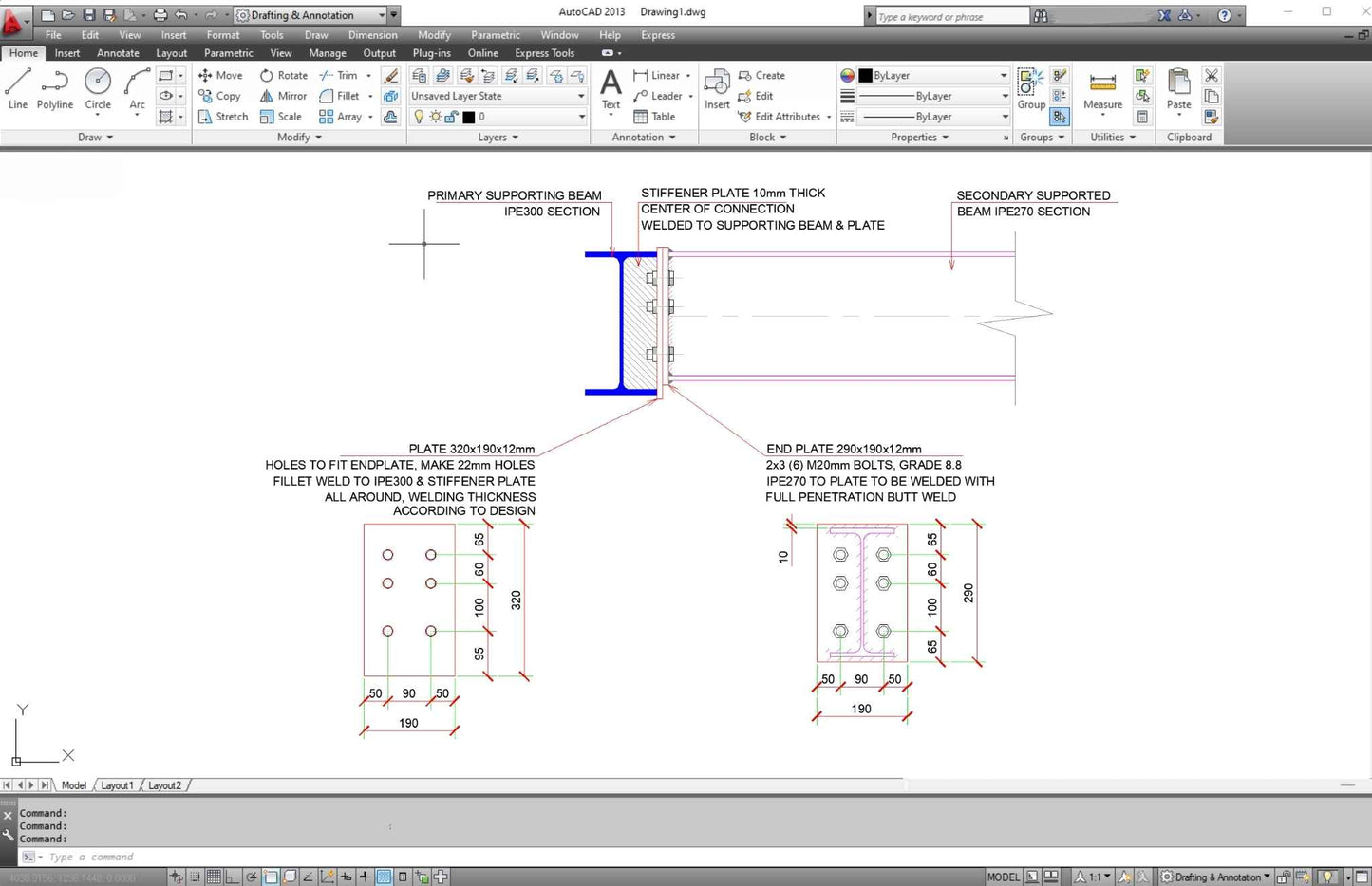
Looking for a CAD detail drawing for a Beam to Beam Endplate Steel Connection Detail? This powerful resource provides a comprehensive and accurate illustration of a semi-moment resisting connection, between a secondary parallel flange IPE profile beam onto a primary IPE beam, with a bolted endplate connection. No on-site welding required.
Comprehensive Detailing
This comprehensive connection drawing includes complete dimension detailing, endplate thickness and sizing, bolts grade, diameter and position, welding specifications, beam web stiffener size and welding, and more. The main beam web stiffener provides excellent torsional resistance at the connection point, ensuring optimal strength and durability.
Use with any project
This comprehensive drawing provides a clear and detailed representation of an endplate connection between two IPE profile beams.
The drawing is designed to be adaptable to any steel design project, ensuring that it can be used across a wide range of construction applications. You can easily customize the detail to fit your unique design specifications and steel beam profile sections, saving valuable time and increasing efficiency on every project.
Share



Bundle and Save . . .
-
Complete Single Span Hangar Portal Frame Design Details
Regular price €28,00 EURRegular price€35,00 EURSale price €28,00 EURSale -
Simple Timber Pergola Complete Solution Details for veranda patio porch
Regular price €28,00 EURRegular price€35,00 EURSale price €28,00 EURSale -
Steel Frame Hangar Complete Design Drawings
Regular price €75,00 EURRegular price€100,00 EURSale price €75,00 EURSale -
Complete structural design drawings for a reinforced concrete house
Regular price €75,00 EURRegular price€100,00 EURSale price €75,00 EURSale -
Reinforced Concrete Beam Column Multistorey Frame Connections
Regular price €25,00 EURRegular price€33,00 EURSale price €25,00 EURSale

Complete Library Sets
Large number of individual details bundled together into complete library sets. Complete Reinforced Concrete library, Steel frame library, Timber frame library and Revit families library.
Grow your library with this great value set of drawings.
Buy Once and Get Free Lifetime Updates!

Library Bundles
Carefully selected collection of CAD structural details and excel templates, bundled together at a special discounted price.
Bundle and save!

Our Super Bundle Offer
All of our structural CAD libraries, bundled together into a single package with hundreds of drawings at a Super Bundle Price.
Contains all of Reinforced Concrete, Steel Frame and Timber frame structural drawings.
A large comprehensive structural library at your fingertips to use with every project. Save time - save big!
Buy Once and Get Free Lifetime Updates!

Subscribe to our mailing list
To show our appreciation we will send you a 10% discount for your next purchase. We only send 1-2 emails per month with store updates and upcoming offers.
We promise not to spam your inbox. Don't miss out on amazing offers!
RECEIVE A FREE SAMPLES PACK
SIGN UP HERE
Discover more...
Browser our Youtube channel and discover more design tips, tutorials and productivity tools.
-
SAVE TIME
Ready made CAD drawings
-
LARGE LIBRARY
Biggest structural library online
-
FULLY DETAILED
Taken from real life projects