Steel Beam Reinforced Concrete Wall Endplate Moment Connection
Steel Beam Reinforced Concrete Wall Endplate Moment Connection
Couldn't load pickup availability
DIGITAL CONTENT – INSTANT DOWNLOAD
Save hours of drafting time. Ready-to-use structural CAD detail.
WHAT'S INCLUDED
WHAT'S INCLUDED
DIGITAL CONTENT - INSTANT DOWNLOAD. Your files will be available to download immediately after successful payment.
STRUCTURAL CAD DRAWING .dwg, .dxf, and .pdf delivered in one zip file.
All drawings are prepared using the metric system.
3D Images and models are not included with this purchase.
REFUNDS POLICY
REFUNDS POLICY
For digital products we generally cannot offer refunds. Refunds can only be considered under specific circumastances. For more details you can read our refund and returns policy HERE
FULL PRODUCT DESCRIPTION
FULL PRODUCT DESCRIPTION
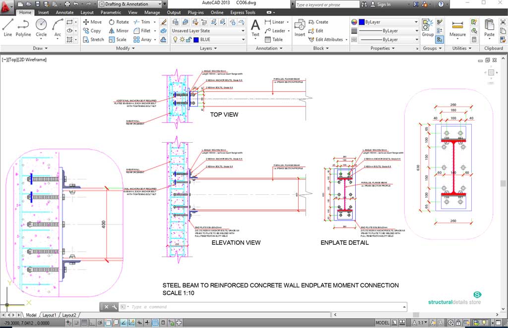
When designing for composite structures with steel members and reinforced concrete, this detailed CAD dwg drawing of a rigid moment resisting endplate steel beam connection to a reinforced concrete wall connection will surely come in handy.
It can be used a template for any project. Depending on steel beam sizing, designer will need to adjust the width and height of the connection detail with very easy CAD commands. Its easier to start from a ready made solution and adjust than creating something from scratch.
Complete Detailing
This detailed connection drawing is one of the most valuable and essential tool you will need when designing for composite structures.
All necessary views and details needed to fabricate this connection are included.
- Connection elevation view
- Connection top view
- Connection detailing
Depending on the design and the size of the steel beam profile, endplate thickness and anchor bolt diameters will need to be adjusted according to each unique structural design.
Use with any project
This comprehensive drawing provides a clear and detailed representation of the specific connection in order to achieve a rigid moment connection between a steel beam and a reinforced concrete wall or column. Usually, these type of connections are necessary with composite structures and especially when the lift core is constructed with reinforced concrete.
The drawing is designed to be adaptable to any steel profile section for any project, ensuring that it can be used across a wide range of construction applications.
Share


Bundle and Save . . .
-
Complete Single Span Hangar Portal Frame Design Details
Regular price €28,00 EURRegular price€35,00 EURSale price €28,00 EURSale -
Simple Timber Pergola Complete Solution Details for veranda patio porch
Regular price €28,00 EURRegular price€35,00 EURSale price €28,00 EURSale -
Complete structural design drawings for a reinforced concrete house
Regular price €75,00 EURRegular price€100,00 EURSale price €75,00 EURSale -
Steel Frame Hangar Complete Design Drawings
Regular price €75,00 EURRegular price€100,00 EURSale price €75,00 EURSale -
Reinforced Concrete Beam Column Multistorey Frame Connections
Regular price €25,00 EURRegular price€33,00 EURSale price €25,00 EURSale

Complete Library Sets
Large number of individual details bundled together into complete library sets. Complete Reinforced Concrete library, Steel frame library, Timber frame library and Revit families library.
Grow your library with this great value set of drawings.
Buy Once and Get Free Lifetime Updates!

Library Bundles
Carefully selected collection of CAD structural details and excel templates, bundled together at a special discounted price.
Bundle and save!

Our Super Bundle Offer
All of our structural CAD libraries, bundled together into a single package with hundreds of drawings at a Super Bundle Price.
Contains all of Reinforced Concrete, Steel Frame and Timber frame structural drawings.
A large comprehensive structural library at your fingertips to use with every project. Save time - save big!
Buy Once and Get Free Lifetime Updates!

Subscribe to our mailing list
To show our appreciation we will send you a 10% discount for your next purchase. We only send 1-2 emails per month with store updates and upcoming offers.
We promise not to spam your inbox. Don't miss out on amazing offers!
RECEIVE A FREE SAMPLES PACK
SIGN UP HERE
Discover more...
Browser our Youtube channel and discover more design tips, tutorials and productivity tools.
-
SAVE TIME
Ready made CAD drawings
-
LARGE LIBRARY
Biggest structural library online
-
FULLY DETAILED
Taken from real life projects