Steel Beam Connection on Top of Reinforced Concrete Column or Wall
Steel Beam Connection on Top of Reinforced Concrete Column or Wall
Couldn't load pickup availability
DIGITAL CONTENT – INSTANT DOWNLOAD
Save hours of drafting time. Ready-to-use structural CAD detail.
WHAT'S INCLUDED
WHAT'S INCLUDED
DIGITAL CONTENT - INSTANT DOWNLOAD. Your files will be available to download immediately after successful payment.
STRUCTURAL CAD DRAWING .dwg, .dxf, and .pdf delivered in one zip file.
All drawings are prepared using the metric system.
3D Images and models are not included with this purchase.
REFUNDS POLICY
REFUNDS POLICY
For digital products we generally cannot offer refunds. Refunds can only be considered under specific circumastances. For more details you can read our refund and returns policy HERE
FULL PRODUCT DESCRIPTION
FULL PRODUCT DESCRIPTION
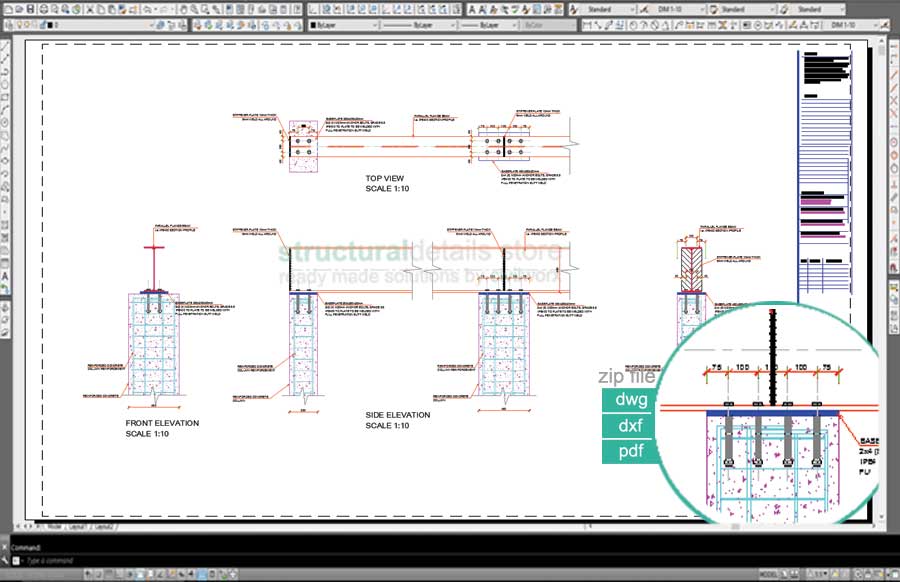
This is a CAD dwg drawing detail for a Steel Beam Connection on Top of Reinforced Concrete Column or Wall. Excellent detail to have when designing composite structures with reinforced concrete columns and steel floor beams.
Primary steel floor beam is supported on top of a discontinued reinforced concrete column or shear wall or retaining wall with a moment resisting baseplate.
Comprehensive Detailing
This comprehensive connection drawing includes complete dimension detailing, baseplate thickness and sizing, anchor bolts grade, diameter and position, welding specifications, beam web stiffener size and welding, and more. The main beam web stiffener provides excellent torsional resistance at the connection point, ensuring optimal strength and durability.
Two types of connection details
In this detailed drawing two types of connections are included. One is for the primary steel floor beam to be continuous in mid-span of the structure frame continouing on both sides of the concrete supporting column and the other is for the steel beam to be connected at the end frame column support with no continuation.
Both connections are done with a baseplate and anchor bolts cast inside the concrete column. Both are fully detailed in cross sectional views, and plan views.
Save time with all projects
Can be used by any engineer, architect, or construction professional working with steel frame designs.
Share

Bundle and Save . . .
-
Complete Single Span Hangar Portal Frame Design Details
Regular price €28,00 EURRegular price€35,00 EURSale price €28,00 EURSale -
Simple Timber Pergola Complete Solution Details for veranda patio porch
Regular price €28,00 EURRegular price€35,00 EURSale price €28,00 EURSale -
Complete structural design drawings for a reinforced concrete house
Regular price €75,00 EURRegular price€100,00 EURSale price €75,00 EURSale -
Steel Frame Hangar Complete Design Drawings
Regular price €75,00 EURRegular price€100,00 EURSale price €75,00 EURSale -
Reinforced Concrete Beam Column Multistorey Frame Connections
Regular price €25,00 EURRegular price€33,00 EURSale price €25,00 EURSale
Complete Library Sets
Large number of individual details bundled together into complete library sets. Complete Reinforced Concrete library, Steel frame library, Timber frame library and Revit families library.
Grow your library with this great value set of drawings.
Buy Once and Get Free Lifetime Updates!
Library Bundles
Carefully selected collection of CAD structural details and excel templates, bundled together at a special discounted price.
Bundle and save!
Our Super Bundle Offer
All of our structural CAD libraries, bundled together into a single package with hundreds of drawings at a Super Bundle Price.
Contains all of Reinforced Concrete, Steel Frame and Timber frame structural drawings.
A large comprehensive structural library at your fingertips to use with every project. Save time - save big!
Buy Once and Get Free Lifetime Updates!
Subscribe to our mailing list
To show our appreciation we will send you a 10% discount for your next purchase. We only send 1-2 emails per month with store updates and upcoming offers.
We promise not to spam your inbox. Don't miss out on amazing offers!
RECEIVE A FREE SAMPLES PACK
SIGN UP HERE
Discover more...
Browser our Youtube channel and discover more design tips, tutorials and productivity tools.
-
SAVE TIME
Ready made CAD drawings
-
LARGE LIBRARY
Biggest structural library online
-
FULLY DETAILED
Taken from real life projects