SHS Steel Column Splice Connection Detail Drawing
SHS Steel Column Splice Connection Detail Drawing
Couldn't load pickup availability
DIGITAL CONTENT – INSTANT DOWNLOAD
Save hours of drafting time. Ready-to-use structural CAD detail.
WHAT'S INCLUDED
WHAT'S INCLUDED
DIGITAL CONTENT - INSTANT DOWNLOAD. Your files will be available to download immediately after successful payment.
STRUCTURAL CAD DRAWING .dwg, .dxf, and .pdf delivered in one zip file.
All drawings are prepared using the metric system.
3D Images and models are not included with this purchase.
REFUNDS POLICY
REFUNDS POLICY
For digital products we generally cannot offer refunds. Refunds can only be considered under specific circumastances. For more details you can read our refund and returns policy HERE
FULL PRODUCT DESCRIPTION
FULL PRODUCT DESCRIPTION
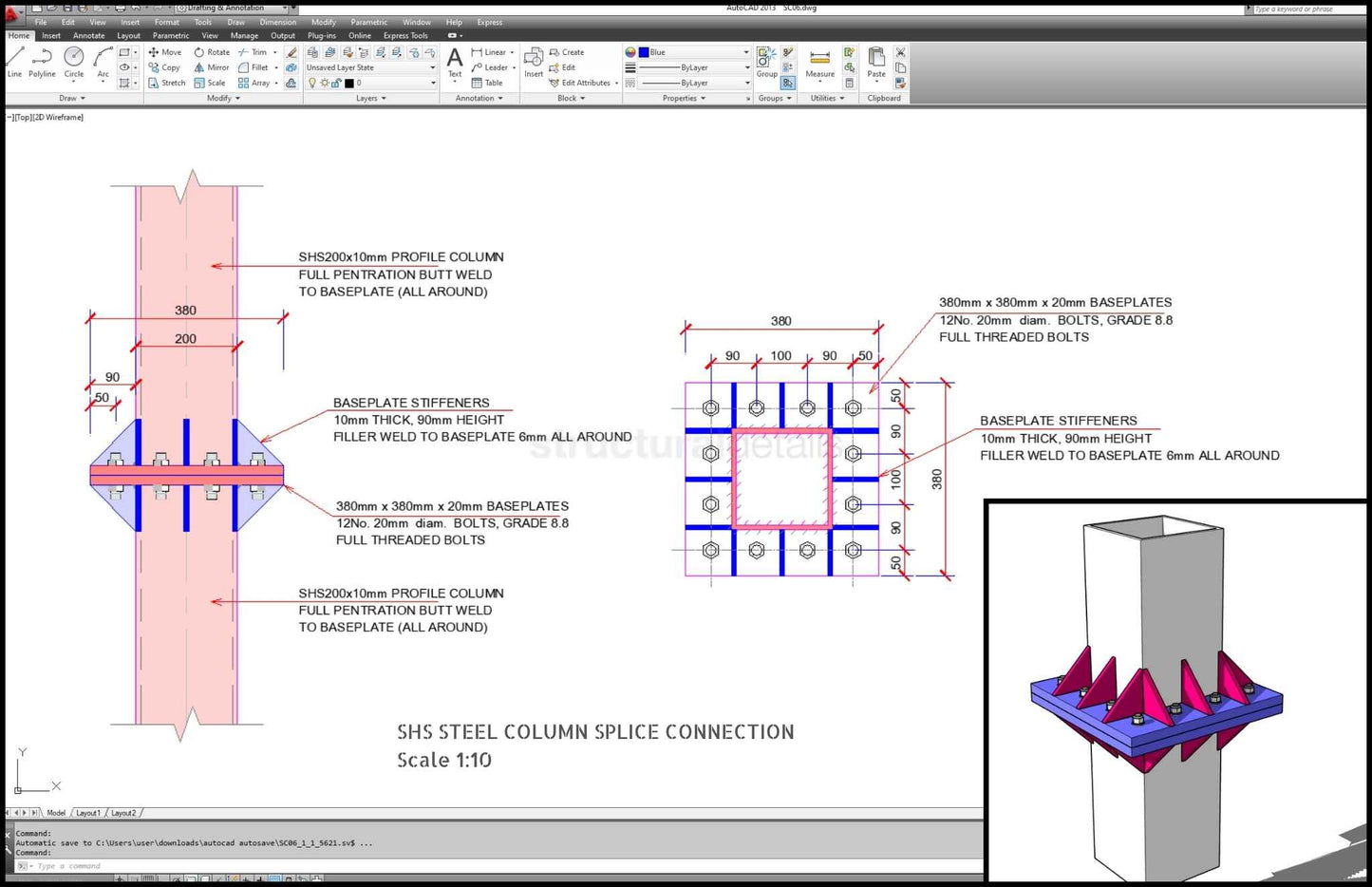
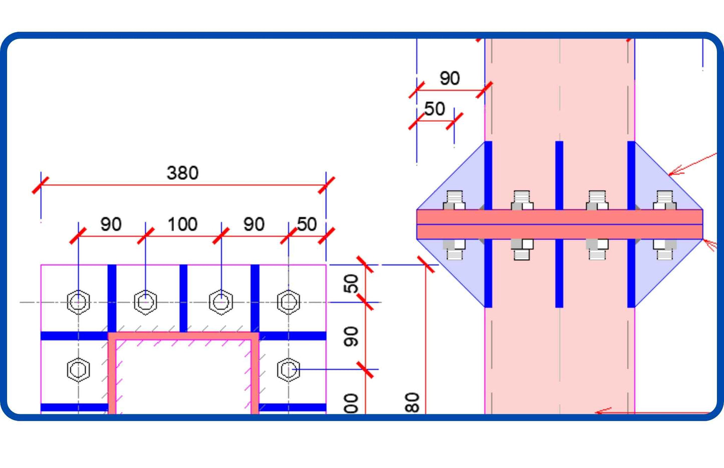
This is a ready made fully detailed structural CAD drawing of an SHS steel column moment resisting splice connection. SHS ( square hollow section ) profile used is SHS200x10mm. Column splice connections are better to be applied where moment forces are minimum, usually at 1/3 of column height for moment frame structures.
Why start from scratch when you can have this fully detailed drawing ready to be implemented into any project and save time.
Comprehensive detailing
Connection is made with the use of 2 baseplates. Each SHS column is welded onto each baseplate with a full penetration butt weld. Plates are then bolted together with full threaded bolts. Plate stiffeners are also used and detailed, to ensure that moment forces are transferred through this connection.
Use with any project
With simple CAD commands, you can easily transform this detail to suit any design requirements to match the size of any SHS column. You can save 70% of your design time by using ready made library files rather than starting from scratch.
A valuable resource at your fingertips for every project you undertake. Deliver your projects faster and more efficiently.
Share




Bundle and Save . . .
-
Complete Single Span Hangar Portal Frame Design Details
Regular price €28,00 EURRegular price€35,00 EURSale price €28,00 EURSale -
Simple Timber Pergola Complete Solution Details for veranda patio porch
Regular price €28,00 EURRegular price€35,00 EURSale price €28,00 EURSale -
Complete structural design drawings for a reinforced concrete house
Regular price €75,00 EURRegular price€100,00 EURSale price €75,00 EURSale -
Steel Frame Hangar Complete Design Drawings
Regular price €75,00 EURRegular price€100,00 EURSale price €75,00 EURSale -
Reinforced Concrete Beam Column Multistorey Frame Connections
Regular price €25,00 EURRegular price€33,00 EURSale price €25,00 EURSale

Complete Library Sets
Large number of individual details bundled together into complete library sets. Complete Reinforced Concrete library, Steel frame library, Timber frame library and Revit families library.
Grow your library with this great value set of drawings.
Buy Once and Get Free Lifetime Updates!

Library Bundles
Carefully selected collection of CAD structural details and excel templates, bundled together at a special discounted price.
Bundle and save!

Our Super Bundle Offer
All of our structural CAD libraries, bundled together into a single package with hundreds of drawings at a Super Bundle Price.
Contains all of Reinforced Concrete, Steel Frame and Timber frame structural drawings.
A large comprehensive structural library at your fingertips to use with every project. Save time - save big!
Buy Once and Get Free Lifetime Updates!

Subscribe to our mailing list
To show our appreciation we will send you a 10% discount for your next purchase. We only send 1-2 emails per month with store updates and upcoming offers.
We promise not to spam your inbox. Don't miss out on amazing offers!
RECEIVE A FREE SAMPLES PACK
SIGN UP HERE
Discover more...
Browser our Youtube channel and discover more design tips, tutorials and productivity tools.
-
SAVE TIME
Ready made CAD drawings
-
LARGE LIBRARY
Biggest structural library online
-
FULLY DETAILED
Taken from real life projects