Roof Steel Truss Column Overhang Connection Detail
Roof Steel Truss Column Overhang Connection Detail
Couldn't load pickup availability
DIGITAL CONTENT – INSTANT DOWNLOAD
Save hours of drafting time. Ready-to-use structural CAD detail.
WHAT'S INCLUDED
WHAT'S INCLUDED
DIGITAL CONTENT - INSTANT DOWNLOAD. Your files will be available to download immediately after successful payment.
STRUCTURAL CAD DRAWING .dwg, .dxf, and .pdf delivered in one zip file.
All drawings are prepared using the metric system.
3D Images and models are not included with this purchase.
REFUNDS POLICY
REFUNDS POLICY
For digital products we generally cannot offer refunds. Refunds can only be considered under specific circumastances. For more details you can read our refund and returns policy HERE
FULL PRODUCT DESCRIPTION
FULL PRODUCT DESCRIPTION
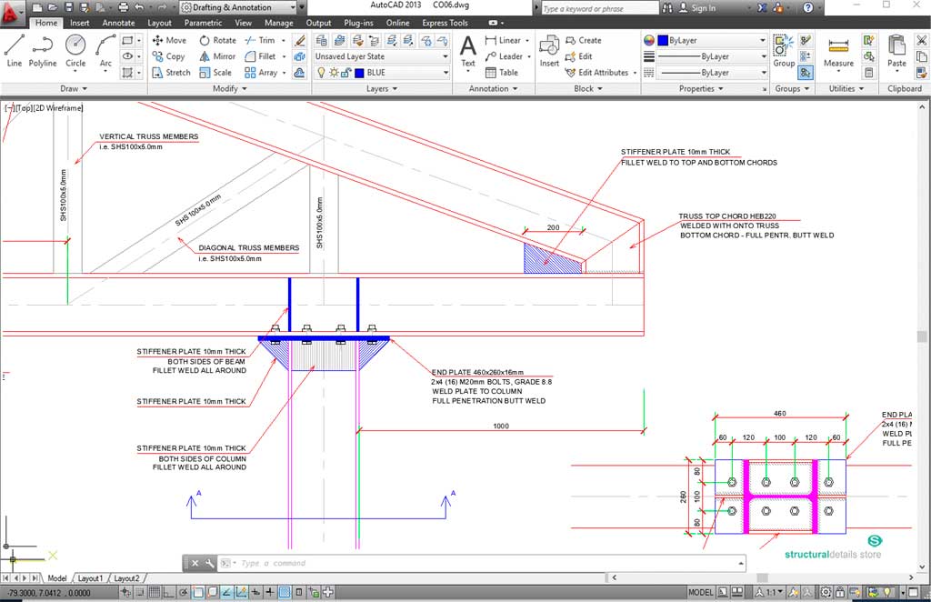
This is a standard pitched Roof Steel Truss Column Overhang Connection Detail. This detail illustrates 2 types of steel trusses. One with I-section profile top and bottom chords and the other with SHS section profile members.
Connection with a bolted top plate welded onto the supporting column with stiffener plates. Moment resisting connection bolted onto the bottom truss chord member. Column web is reinforced with stiffener plates.
All truss members are welded together with fillet welds.
Roof trusses, are commonly used in order to achieve large spans for creating large open space areas. Instead of large heavy primary girder beams, with very large profile sections, trusses also reduce the cost per steel unit weight of the construction.
Size of the truss and truss members depend on the loading conditions, design criteria as well as architectural restrictions. By enlarging the truss overall depth, greater loads can be achieved but in some cases this is not feasible due to architectural restrictions. Variations of truss depth and truss members can achieve the desired loading requirements, thus creating an infinite number of possible truss variations.
On top of that, truss openings can be very easily used, for passing all mechanical and electrical services within the truss depth, thus eliminating further downsizing of the ceiling clear height. Once the mechanical ducting services are obtained, one can design the truss with given minimum and maximum depth and sizing in order to achieve the best feasible result.
This is a great truss detailed drawing template that can be used with almost every design. Sizing can be altered with minimum CAD commands to match every design requirements.
Share



Bundle and Save . . .
-
Complete Single Span Hangar Portal Frame Design Details
Regular price €28,00 EURRegular price€35,00 EURSale price €28,00 EURSale -
Simple Timber Pergola Complete Solution Details for veranda patio porch
Regular price €28,00 EURRegular price€35,00 EURSale price €28,00 EURSale -
Complete structural design drawings for a reinforced concrete house
Regular price €75,00 EURRegular price€100,00 EURSale price €75,00 EURSale -
Steel Frame Hangar Complete Design Drawings
Regular price €75,00 EURRegular price€100,00 EURSale price €75,00 EURSale -
Reinforced Concrete Beam Column Multistorey Frame Connections
Regular price €25,00 EURRegular price€33,00 EURSale price €25,00 EURSale

Complete Library Sets
Large number of individual details bundled together into complete library sets. Complete Reinforced Concrete library, Steel frame library, Timber frame library and Revit families library.
Grow your library with this great value set of drawings.
Buy Once and Get Free Lifetime Updates!

Library Bundles
Carefully selected collection of CAD structural details and excel templates, bundled together at a special discounted price.
Bundle and save!

Our Super Bundle Offer
All of our structural CAD libraries, bundled together into a single package with hundreds of drawings at a Super Bundle Price.
Contains all of Reinforced Concrete, Steel Frame and Timber frame structural drawings.
A large comprehensive structural library at your fingertips to use with every project. Save time - save big!
Buy Once and Get Free Lifetime Updates!

Subscribe to our mailing list
To show our appreciation we will send you a 10% discount for your next purchase. We only send 1-2 emails per month with store updates and upcoming offers.
We promise not to spam your inbox. Don't miss out on amazing offers!
RECEIVE A FREE SAMPLES PACK
SIGN UP HERE
Discover more...
Browser our Youtube channel and discover more design tips, tutorials and productivity tools.
-
SAVE TIME
Ready made CAD drawings
-
LARGE LIBRARY
Biggest structural library online
-
FULLY DETAILED
Taken from real life projects