Skip to product information
1 of 5

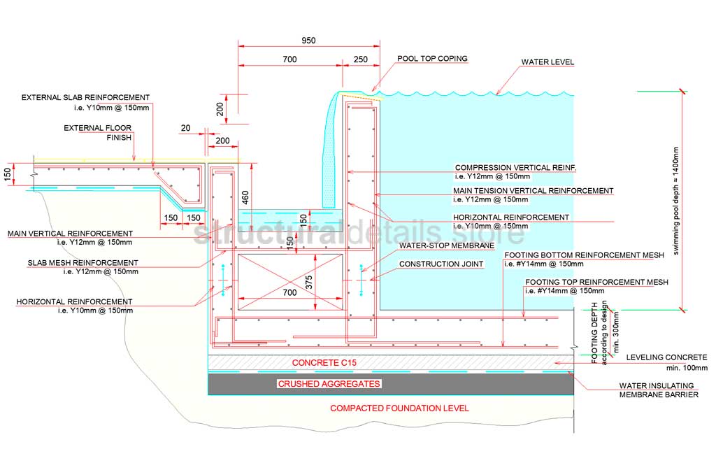
Infinity Type Swimming Pool Retaining Wall with Catch Pool Detail

Infinity Type Swimming Pool Retaining Wall with Catch Pool Detail

Regular price €8,00 EUR
Regular price Sale price €8,00 EUR
Sale Sold out

DIGITAL CONTENT – INSTANT DOWNLOAD

Save hours of drafting time. Ready-to-use structural CAD detail.

WHAT'S INCLUDED

DIGITAL CONTENT - INSTANT DOWNLOAD. Your files will be available to download immediately after successful payment. 

STRUCTURAL CAD DRAWING .dwg, .dxf, and .pdf delivered in one zip file.

All drawings are prepared using the metric system.

3D Images and models are not included with this purchase.

REFUNDS POLICY

For digital products we generally cannot offer refunds. Refunds can only be considered under specific circumastances. For more details you can read our refund and returns policy HERE

FULL PRODUCT DESCRIPTION

This is a complete detailed structural CAD drawing of an Infinity Type Swimming Pool Retaining Wall with Catch Pool Detail, taken from real life projects. It can be imported into any pool structural design project and used as a standard reinforcement detailing for construction.

Infinity pools ( or vanishing pools ) may be completely raised from the surrounding deck area and have all edges as infinity edges, or if the landscape permits, they can have only one infinity edge and the other sides can have an overflow channel. Take water than runs off from the infinity edge(s) needs to be collected so that it can be filtered and re-pumped into the pool. The same process as an overflow pool. That is why you will need a catch pool detail over the infinity edge.

The catch pool size can vary, and it can also serve as a balancing tank. As a rule of thump, balancing tanks need to hold 10% of the pools water volume and this will determine the depth of catch pool. Otherwise, if it the pool has a separate balancing tank then the catch pool can have any desired depth and size.

Comprehensive Detailing

This highly detailed construction drawing is one of the most valuable and essential tool you will need when designing with reinforced concrete pool structures to help you save valuable time with every project.

Calculations for the needed reinforcement and retaining wall thickness were carried out for pool water depths of around 130-140cm. For shallower pools, the reinforcement could be reduced to the minimum reinforcement.

The drawing provides a clear and complete reinforcement detailing of all the retaining walls and footings needed in order to complete this structural design task.

  • Pool foundation reinforcement detailing
  • Pool wall vertical and horizontal reinforcement
  • Construction joint with water stop detail
  • Pool copings
  • Infinity Catch pool reinforcement detailings
  • Exteranl floor reinforcement detail

As mentioned above, the water depth of the pool and the catch pool can vary for every design, and it can very easily be adjusted with simple CAD commands.

Generic and adaptable

This comprehensive drawing provides a clear and detailed representation of everything needed to completely design and detail an infinity pool edge retaining wall and catch pool together with the exterior deck area floor slab.

View full details

Complete Library Sets

Large number of individual details bundled together into complete library sets. Complete Reinforced Concrete library, Steel frame library, Timber frame library and Revit families library.

Grow your library with this great value set of drawings.

Buy Once and Get Free Lifetime Updates!

VIEW HERE

Library Bundles

Carefully selected collection of CAD structural details and excel templates, bundled together at a special discounted price.

Bundle and save!

VIEW HERE

Our Super Bundle Offer

All of our structural CAD libraries, bundled together into a single package with hundreds of drawings at a Super Bundle Price.

Contains all of Reinforced Concrete, Steel Frame and Timber frame structural drawings.

A large comprehensive structural library at your fingertips to use with every project. Save time - save big!

Buy Once and Get Free Lifetime Updates!

VIEW HERE

Subscribe to our mailing list

To show our appreciation we will send you a 10% discount for your next purchase. We only send 1-2 emails per month with store updates and upcoming offers.

We promise not to spam your inbox. Don't miss out on amazing offers!

RECEIVE A FREE SAMPLES PACK

SIGN UP HERE

Discover more...

Browser our Youtube channel and discover more design tips, tutorials and productivity tools.

VISIT OUR CHANNEL
  • SAVE TIME

    Ready made CAD drawings

  • LARGE LIBRARY

    Biggest structural library online

  • FULLY DETAILED

    Taken from real life projects